Zabrze, Marii Curie-Skłodowskiej
355 000,00 PLN
Mieszkanie na sprzedaż , 78,20 m2
4 539,64 PLN /m2
Powierzchnia
78,20 m2
Liczba pokoi
3

Dane nieruchomości:

Numer oferty: 154738
Powierzchnia: 78,20 m2
Liczba pokoi: 3
Piętro/Pięter 2 z 4
Ogrzewanie: CO miejskie
Balkon : 1
Jasna kuchnia: Tak
Cena za m2: 4 539,64 PLN
Cena: 355 000,00 PLN

Opis nieruchomości:

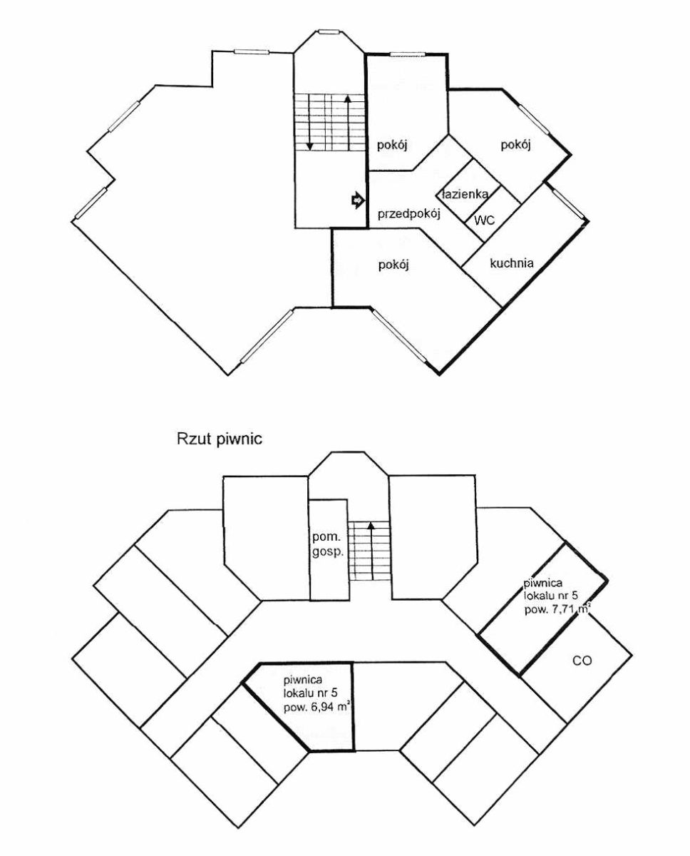
Na sprzedaż oferujemy mieszkanie o powierzchni 78,2 m², położone w Zabrzu przy ulicy Marii Skłodowskiej-Curie, na drugim piętrze zadbanego budynku.
To przestronny lokal, w którym znajdziesz trzy ustawne pokoje, oddzielną kuchnię, a także łazienkę i osobne WC - praktyczny układ, który daje wiele możliwości aranżacyjnych.
Dodatkowym atutem jest balkon, idealny na chwilę relaksu na świeżym powietrzu, oraz dwie piwnice o powierzchniach 7,71 m² i 6,94 m², przynależne wyłącznie do właściciela, co zapewnia dodatkową przestrzeń do przechowywania.

Mieszkanie wymaga kapitalnego remontu, co stwarza wyjątkową okazję do urządzenia wnętrza według własnego pomysłu i nadania mu indywidualnego charakteru.
Czynsz wynosi 1220 zł miesięcznie i obejmuje wszystkie najważniejsze opłaty,
w tym ogrzewanie, wodę ciepłą i zimną, wywóz śmieci, utrzymanie budynku oraz fundusz remontowy.

Lokalizacja to niewątpliwy atut tej nieruchomości.
W najbliższej okolicy znajdują się sklepy, punkty usługowe, szkoły i przedszkola, a także większe centra handlowe, dzięki czemu codzienne zakupy i załatwianie spraw stają się wygodne. Nie brakuje tu również terenów zielonych, które sprzyjają spacerom i odpoczynkowi, a dobra komunikacja miejska pozwala szybko dotrzeć zarówno do centrum miasta, jak i do innych dzielnic.

To propozycja dla osób, które szukają mieszkania z potencjałem w dobrze skomunikowanej i rozwiniętej części Zabrza, a przy tym chcą stworzyć przestrzeń idealnie dopasowaną do swoich potrzeb.

Skontaktuj się z agentem :
Mariola Kirsz

Telefon : 513337841

mariola@platinumhome.pl


Lokalizacja: